San Gallo – fondo commerciale con canna fumaria (Rif. 3241)

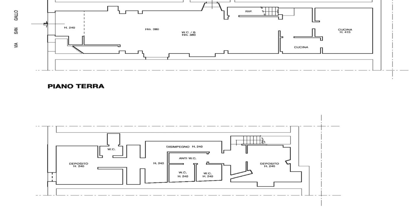
VIA SAN GALLO, in buonissimo punto commerciale, ottimo fondo con canna fumaria di circa 160 mq distribuito al piano terreno da un grande vano oltre cucina per un totale di circa 110 mq e al piano interrato dove si trovano i servizi igienici e locale magazzino. Il fondo è dotato di grande sporto su strada. Da ristrutturare. Viene venduto a € 340.000 o locato a € 2.600 mensili.

Caratteristiche

Condizioni

Da ristrutturare

Spazio abitabile

160 m²

Numero di stanze

3

Numero di camere da letto

0

Numero di bagni

1

Numero di piani

3

Piano

Terreno e siminterrato

Riscaldamento

Assente

Dettagli

Cod. Riferimento

3241

Contratto

Vendita

Comune

Firenze

Zona

Centro Storico

Tipologia

Fondo commerciale

Conforts

n/d
Scrivici o contattaci via WhatsApp al numero (+39) 376.11.22.273

Si prega di indicare Nome e Cognome ed il numero di riferimento dell'immobile.

Altri immobili