SAN SALVI – SPLENDIDO APPARTAMENTO CON GIARDINO (Rif. 3170)

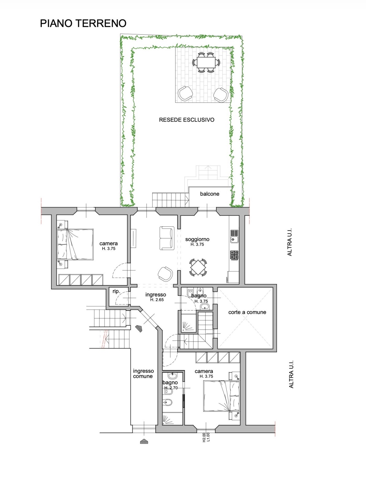
SAN SALVI – In bella strada tranquilla, all’interno di una piccola palazzina dei primi del ’900, proponiamo splendido appartamento di circa 130 mq, completamente e finemente ristrutturato, con giardino privato di circa 150 mq. L’immobile si compone di un ampio salone doppio con balcone e accesso diretto al giardino, spazio cottura, due camere matrimoniali, doppi servizi e vano studio al piano sottostante, anch’esso con accesso al giardino. Oggetto di grande fascino, ideale per chi cerca tranquillità e spazi esterni senza rinunciare alla comodità dei servizi.

Caratteristiche

Condizioni

Ottime

Spazio abitabile

130 m²

Numero di stanze

6

Numero di camere da letto

2

Numero di bagni

2

Numero di piani

3

Piano

Terreno rialzato

Riscaldamento

Autonomo

Dettagli

Cod. Riferimento

3170

Contratto

Vendita

Comune

Firenze

Zona

San Salvi

Tipologia

Appartamento

Conforts

Aria condizionata, Balcone, Giardino
Scrivici o contattaci via WhatsApp al numero (+39) 376.11.22.273

Si prega di indicare Nome e Cognome ed il numero di riferimento dell'immobile.

Altri immobili