SAN GALLO, OTTIMO FONDO COMMERCIALE CON CANNA FIUMARIA (Rif. 3241)

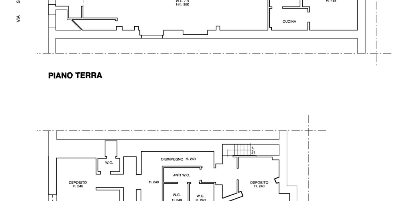
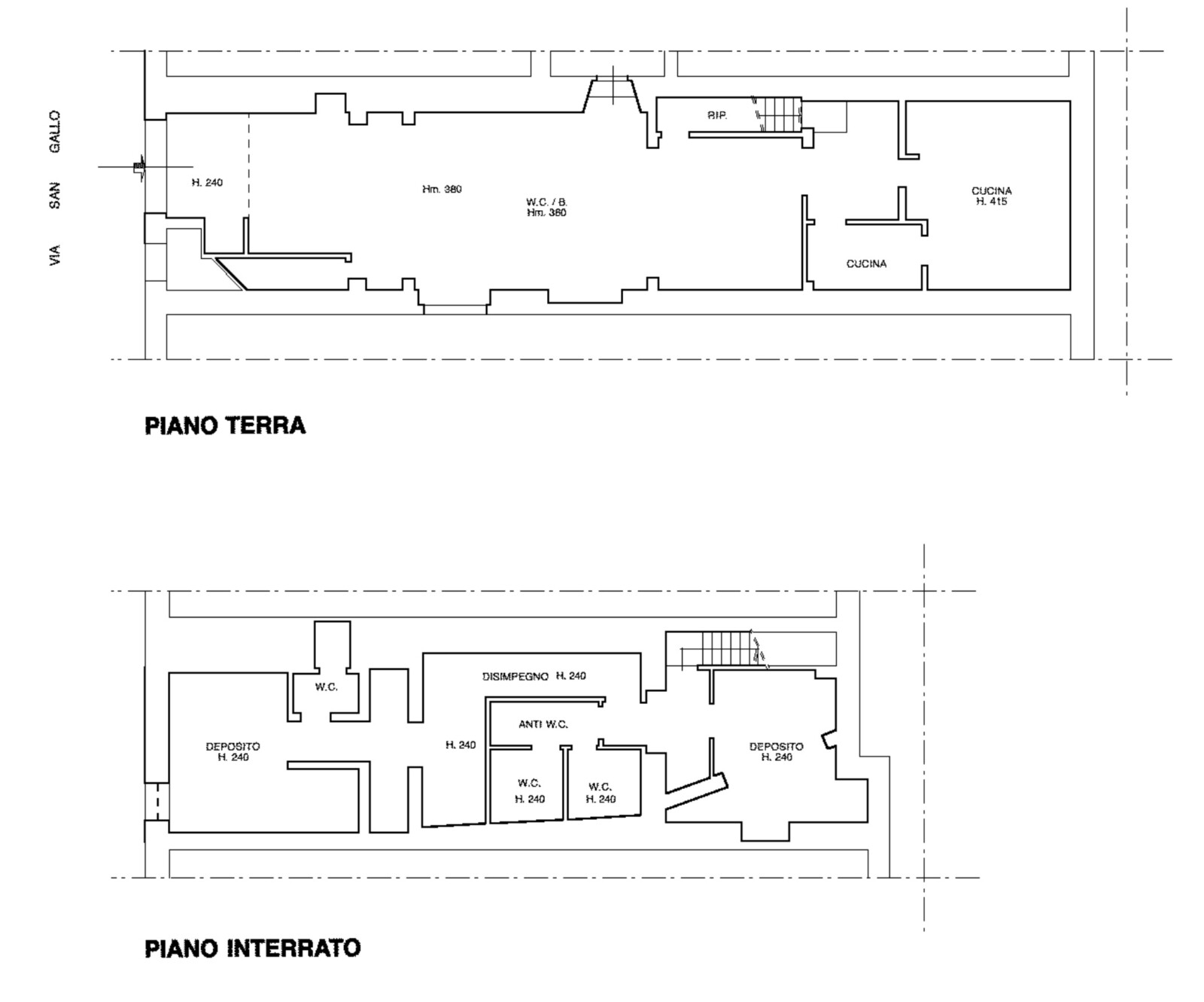
VIA SAN GALLO, in buonissimo punto commerciale, proponiamo fondo commerciale di grande potenziale, circa 160 mq complessivi, dotato di canna fumaria, elemento raro e di altissimo valore.

L’immobile dispone di:

  • ampio spazio al piano terreno (circa 110 mq) ideale per sala vendita o somministrazione,

  • cucina dedicata,

  • piano interrato con servizi igienici e magazzino.

La presenza di un grande sporto su strada garantisce massima visibilità e forte impatto commerciale, perfetto per attività di ristorazione, food & beverage o retail.

. Viene venduto a € 350.000 o locato a € 2.600 mensili.

Caratteristiche

Condizioni

Da Ristrutturare

Spazio abitabile

160 m²

Numero di stanze

3

Numero di camere da letto

0

Numero di bagni

1

Numero di piani

4

Piano

Terreno e interrato

Riscaldamento

Assente

Dettagli

Cod. Riferimento

3241

Contratto

Vendita

Comune

Firenze

Zona

San Gallo

Tipologia

Fondo commerciale

Conforts

Canna fumaria, Sporto su strada, Cucina
Scrivici o contattaci via WhatsApp al numero (+39) 376.11.22.273

Si prega di indicare Nome e Cognome ed il numero di riferimento dell'immobile.

Altri immobili